你知道吗?
新加坡也有像中国“大湾区”
那样轰动的城市规划~

我们留意到今年
新加坡有个地方正在悄悄改变
越来越多的发展商争相拿地
那就是新加坡南部濒水区域
临近西海岸和东海岸也将受益


上一年国庆讲话中
李显龙总理给出了
新加坡这片最美的海岸线
南部濒水地区的蓝图

描绘了今后10至20年的发展
将为所有年龄段的人创造一个
经济上有活力
和适宜居住的家园
经济上,除了南部CBD区域在扩张
英国著名品牌戴森
正在南部建设全球总部
地点就在新加坡圣詹姆斯电站
( St James Power Station)

戴森计划在2021年
搬入这个10,200平方米的空间
新加坡版的“大湾区”
一定会越来越好~
精明如你,肯定知道投资房地产
应该买哪里了吧?

其实南部濒海区域边缘的西海岸
既有升值潜力
也是成熟的住宅区
还是大名鼎鼎的教育重镇
Normanton Park 鑫悦府
★★★★★

2021年最重磅的开盘,位于新加坡西南部的最大楼盘Normanton Park鑫悦府即将开始预约,如果你想要投资到低价单位,那就马上扫码注册,做VVIP参与抽签哦!
鑫悦府Normanton Park 预估价位:
1卧 49平米 70万起
其它户型价位会进一步更新
鑫悦府Normanton Park 时间线:
2021年
1月2日 - 1月15日 VVIP参观样板间
1月16日 VVIP抽签预定
1月17日 开放给公众参观
预定期 .

添加微信做VVIP

在线视频 集锦
鑫悦府视频
Normanton Park


项目 详情

项目名称: 鑫悦府 Normanton park
开发商: 鑫丰地产Kingsford Huray
地契: 99年(2019年起)
区域: D05 -波娜维斯达/西海岸
建筑面积: 63,593平方米
项目规模: 1862间,9 栋高达24层的高楼组成
项目地址: 1 Normanton Park
预计交房时间: 2023年第二季
鑫悦府 Normanton park 是知名开发商鑫丰地产Kingsford收购旧的 HUDC Normanton Park重新设计建造的一个景观公寓。公寓占地面积高达6万3千多平方米,共有1862个单位,由9栋高达24层的高楼组成。这将是西南部最大的公寓。经过开发商的精心设计,这9栋大楼仅占总体面积的20%,园景设施占80%,非常类似地标项目D'leedon, 会成为西南部的又一个地标。
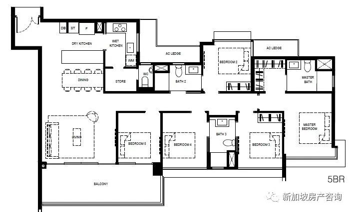
公寓户型覆盖了1-5卧室单位,还有联排别墅和商店。共1862个住宅单位和8个店铺。公寓环境优美,设施齐全,拥有高达100多项设施。


鑫丰地产公司是相对较新的新加坡房地产市场进入者,但它已迅速成为本地知名的实力雄厚的房地产开发商。
它的第一个成功开发项目是Kingsford Hillview Peake-鑫丰‘山景碧苑,该土地是在2012年从政府土地出售中获得的土地。该项目迅速售罄。到2013年底,鑫丰地产公司通过在上实龙岗购买了两个土地并将其开发为1165个单位的大型项目Kingsford Waterbay–鑫丰银河湾,使市场观察者感到惊讶。该项目也是迅速售罄。
对本地房地产市场长期前景的乐观态度是该公司在新加坡开展业务的主要原因。鑫丰地产董事长崔正峰总体上认为,由于新加坡的土地稀缺,一流的制度和良好的治理,从长远来看,新加坡房地产市场具有巨大的潜力。

靠山面海 位置优越



鑫悦府 Normanton park位于新加坡第五邮区,其他中央区RCR的位置。 位于诺曼顿公园路上,沿着科学园大道,紧临新加坡科技园Science Park和南部山脊-肯特岗公园,周围景色优美。9栋高楼底部都有挑高,每座住宅楼中最低的单位离地面都至少有19米,建成后可以欣赏到新加坡市区或政府规划的南部沿海区域的全景。住在鑫悦府,户户是景观!
鑫悦府处于西部与市区交接处,公寓两边都链接主要高速公路。距AYE(西行)仅很短车程, MCE ECP(向东)和 CTE(面向城市),临近的还有KPE。这些快速路让你从鑫悦府开车出发可轻松前往新加坡的中部和西部。四通八达的交通可以带你到达新加坡任何一个角落。
步行到科技园Science Park;
步行15分钟或者1.3米到肯特岗地铁站;
10分钟车程到CBD;
11分钟车程到裕廊第二个CBD;
11分钟车程到乌节路;
7-10分钟到怡丰城/圣陶沙/Mapletree。


教育重镇 众多学校


鑫悦府 Normanton park位于新加坡著名教育地带。举世闻名的新加坡国立大学就近在咫尺。除了大学学府,更有著名的本地高中,国际学校环绕着它,如英华高中(Anglo chinese Junior collegue), 英华中学(ACS independent自主),新加坡科技中学(School of Science and Technology),新加坡理工学院(Singapore Polytechinic),东南亚联合书院(UWCSEA,Dover校区),新加华侨中学(Hwa Chong instituation),新加坡南洋女子中学(Nanyang Grils' High School)等等。

升值潜力
鑫悦府 Normanton park战略性的位于市中心和裕廊区域中心之间,受益于周边的主要发展,比如裕廊区域发展,纬壹园One North的发展。以及南部濒水区的长期发展效应。

裕廊综合新区Jurong Lake District(JLD)有望成为新加坡第二个CBD,涵盖科研,医疗,教育,培训,企业孵化等,是市中心以外最大的商业中心,提供500,000平方米的办公空间和250,000平方米的零售,餐饮,娱乐空间。裕华园规划休闲娱乐设施,例如酒店,娱乐景点等。
裕廊创新区Jurong Invovation District(JID)将成为未来的工业园区,专注于先进制造业,以支持制造商、技术供应商、研究人员和教育机构的生态系统。裕廊创新区的关键主题包括:
供先进制造的活力生态系统
未来的宜居可持续产业区
繁荣的业界与学术合作的家园


纬壹园One North 科技园被称为新加坡的"硅谷”。纬壹园的开发包括200公顷的土地大开发,目标是世界级的科研设备和商业园区,超过25000的就业单位,吸引高端跨国企业入住包括苹果宝洁等。划分为三大主要园区:Biopolis 生物园区,FusionPolis科技信息园区,Mediapolis 多媒体园区。

鑫悦府 Normanton park位于新加坡西南部,靠近政府长达30年规划的南部濒水区。南部濒水区也是目前政府最宏伟的规划。占地面积高达2000万平方米的南部濒水区,拥有长达30公里的海岸线,包括滨海南,拉布拉多公园,pulau Brani 岛和丹戎巴葛。建成后将是新加坡新的市中心和旅游时尚胜地,集工作,生活,娱乐为一体。随着南部濒水区的逐步完善,这将给公寓带来长期的升值潜力。

低密住宅 ·精美园景


鑫悦府设计理念贴近绿色和水体空间,园林设计以亚马逊森林为主题,中央泳池犹如蜿蜒的亚马逊河,约80%的地面公共区域被绿化和泳池覆盖。因此,身处鑫悦府犹如置身于大自然中。搭配上109种酒店式生活休闲设施,便利性十足。
住在鑫悦居,户户都有景观。挑高的户型,最低楼层距离地面也高达19米,相当于普通的6层楼高。高层朝南可以看到南部沿海区域的海景和未来规划。朝北看都市景观和武吉知马山景。
从窗户往下看是蜿蜒的水景,长达150米的泳池在各栋楼之间曲折流动。
度假村般的设施使你仿佛置身室外桃源。想象下在亚马逊山谷中散步,在充满禅意的公园中小憩,在山林旁晚餐,在植物园般的室外运动场锻炼身体,这些只用回家就可享受到。










精品户型 · 优惠价格
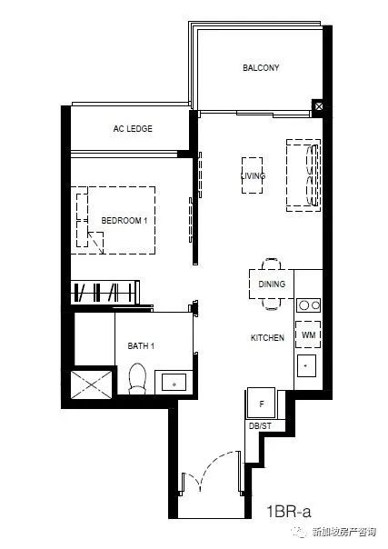
1房
实用面积49平方米
新币70万起

1加书房
实用面积53平方米

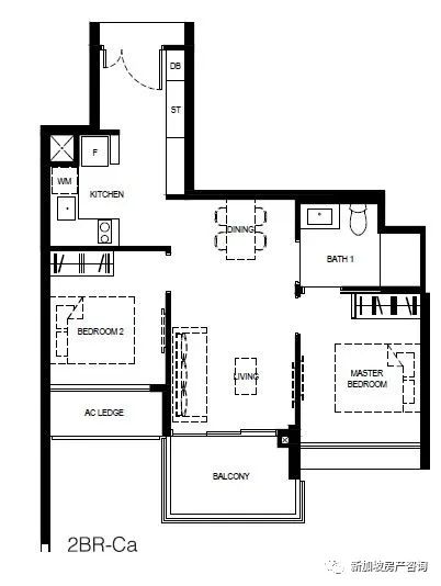
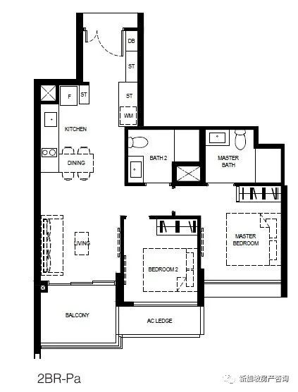
2卧1卫
实用面积61平方米

2卧2卫
实用面积68平方米

3卧标准型
实用面积87平方米

3卧加储藏间
实用面积101平方米

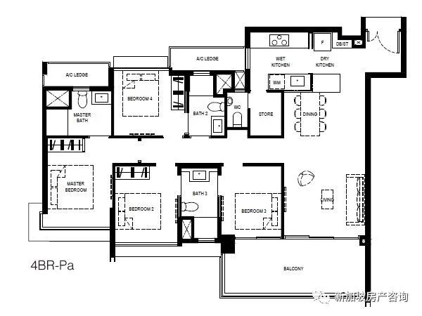
4卧加书房
实用面积122平方米

5卧4卫
实用面积150平方米

联排别墅
实用面积196平方米
















