470天前
22207
0













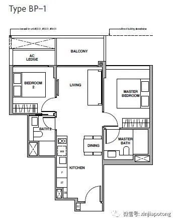
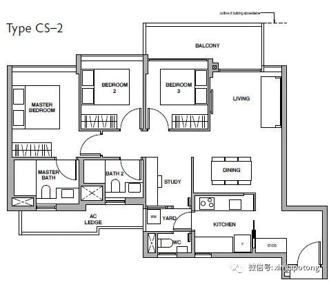
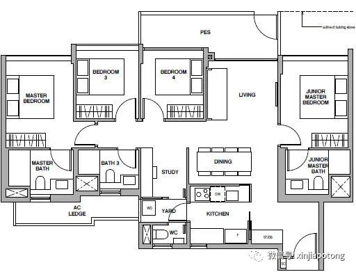
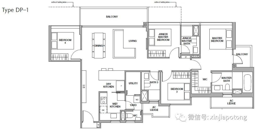
御景苑位于武吉知马核心位置-第六道,名字听起来就很大气,尊贵的地段,与优质别墅洋房为邻居,属于稀缺的永久地契新项目,是这一带13年来唯一开盘的永久地契新楼盘。项目占地面积16000多平方米,拥有285个单位,由8栋5层房子组成,户型从两卧单位到四卧单位,预计2022年第一季度交房。























作者个人简历
吴彪:2002年拿新加坡政府奖学金来深造,已经定居新加坡18年,熟悉中国和新加坡的国情,现任职于新加坡股票交易所上市公司,新加坡最大的地产公司之一ERA地产公司担任高级营销总监,从事房屋经纪行业10年多,已经完成数百宗房地产交易,成交的房屋价值高达新币上亿元,服务过数百位中高档客户,广受客户们好评。包括企业家、高管、中小型企业老板、房地产发展商、新移民、教授、医生等等。
熟悉私人公寓,商业地产,组屋的交易流程,协助顾客办理好贷款、律师办理房产相关手续等,公司全岛各地100多个项目,从大众化公寓到豪宅,提供新加坡任何公寓楼盘和商业地产买卖投资服务,买私宅无任何经纪费用。
买卖房产是专业的事情,专业的事情找专业经纪做。
真诚待人,熟悉房地产市场,通晓中英文双语,善于沟通、合作共赢。

ERA Plush会员(经过公司严格挑选,服务高净值客户)
感谢各位客户朋友的支持,本人在公司多次获得顶级销售奖、公司精英奖,提供诚意十足,细心周到的为客户服务,所以收到客户们的广泛好评,服务好每位客户是我的最重要原则,欢迎买家或卖家联系我。
微信号:Jackwuhome电话:65-91525858
公众号:新加坡通(新加坡房产资讯、政策解读等等)
网站: www.Jackwuhome.com
