刚刚过去的一年,新加坡楼市多红火,从组屋价格和销量就能看出来。
新加坡2021去年全年共有261个二手组屋单位,以至少100万新元以上价格转售。
这个数字比2020年的82个百万组屋多了整整两倍!
根据99.co和SRX联合发布的数据也,新加坡二手组屋价格已经连续18个月上涨!
2021年12月整体组屋转售价环比再上升0.8%;
成熟市镇与非成熟市镇组屋转售价格指数环比分别上涨1%和0.6%;说明成熟市镇组屋涨幅更加大。
三房式、四房式、五房式及执行共管公寓的涨幅依次为0.7%、0.9%、1.1%和1.4%,说明“越大越豪华”的组屋升值越厉害。
其中和商业公寓最接近的执行共管公寓DBSS,环比涨价最高,1.4%。
反正总体来看,新加坡组屋转售价去年全年上涨12.5%,创下2010年以来的最大年度涨幅。
根据业内人士分析,今年二手组屋交易活跃,是因为很多人趁机卖了组屋升级公寓。
组屋作为公共住房对身份和婚姻状态有很多要求,比如买转售组屋你必须是公民或者PR家庭,拿了PR还要等三年。
封闭小区、保安、游泳池、健身房、烧烤台等等都是公寓的标准配置,也是组屋缺少的东西。
在新加坡组屋住满了五年之后,攒攒钱换公寓是很多人的常规操作了。
给您推荐一个2021年销量爆款公寓,坐拥海景线美景,最低只需$1643/英尺起
鑫悦府是一个99年的大型住宅项目,位于新加坡第5邮区,占地面积高达63593平方米,属于数量稀缺的霸王级住宅项目,占地面积大带来的好处是可以有大量和完善的公寓配套设施。总共1862个住宅单位,包括22个排屋、1个餐厅和7个零售单位,户型从1卧室到5卧室供您选择,由9栋24层楼高建筑组成,现在已经打好地基,预计2023年第二季度就可以交房,交房快,很多新盘都需4年等待时间
鑫悦府是一个99年的大型住宅项目,位于新加坡第5邮区,占地面积高达63593平方米,属于数量稀缺的霸王级住宅项目,占地面积大带来的好处是可以有大量和完善的公寓配套设施。总共1862个住宅单位,包括22个排屋、1个餐厅和7个零售单位,户型从1卧室到5卧室供您选择,由9栋24层楼高建筑组成,现在已经打好地基,预计2023年第二季度就可以交房,交房快,很多新盘都需4年等待时间。
独特的卖点:
1. 南部濒水新区待开发,坐等房产增值,最低只需1643/英尺起
2. 每个单位享受不同的无阻挡景观,无敌海景、公园景观或城市景观
3. 霸王级的大型住宅小区,多达110项公寓配套设施
4. 享用大量公寓设施同时,居然物业费超便宜(5房$315/月)
5. 地点优越,靠近科学园区、纬壹科技园、亚历山大商业走廊等
6. 优美环境,面朝大海,靠花柏山,肯特岗公园等自然景点
7. 整个小区按照80/20黄金分配比例,高效实用的户型
8. 大型发展商聘请著名建筑设计公司、园林规划公司量身打造
9. 发展商提供两年短程巴士服务到纬壹(One North)、波那维斯达地铁站
鑫悦府地处其他中央区RCR,开车前往CBD、乌节路不到十分钟,现在很多其他中央区RCR项目市场价$1900-2500/平方英尺,盛港大众化公寓价格1700/平方英尺,发展商给出合理的定价,现在入场价格只需每平方英尺$1627起,诱人的入场价,开盘不到10个月已经卖出1280套,2021年销量最佳楼盘之一 ,对于大型项目是相当可观的销售数据,自带很多亮点是卖掉好的原因,可见群众眼睛是雪亮的,这也是我为什么推荐鑫悦府的原因
鑫悦府的设计师巧妙的设计住宅楼都高出地面(设施层)18.8米,2楼相当于7楼的高度,这样做带来的好处不言而喻,可以保证每户单位有良好采光同时,即使是低楼层的住户也能享受良好的海景、公园景观或城市景观,360度无阻挡景观,70%的单位可以欣赏到海景或者中央商业区的繁华景观。设计师的灵感来自世界最大河流-亚马逊河流,一个大型150米游泳池和两个50米的游泳池,三个游泳池互相连起来俯瞰像条河流,因为项目面积实在太大,所以实际建筑只占到了总面积的20%,剩下80%的面积用来绿化设计,在新加坡属于超大型小区,经历过疫情后,更多人选择更大面积的小区,这样小区配套设施特别多,还有很多设计细节看房时详细介绍哦
鑫悦府往东是便利的中央商业区CBD,往西边是新加坡众多高等学府如新加坡国立大学、南洋理工大学等,往北边是植物园、荷兰村,往南边是富人岛-圣淘沙岛。比邻政府规划待开发的南部濒水新区(Great Southern Waterfront),等开发转型完成时,势必带动周边的房价升值。
步行几分钟即可到达科技园区I、II,靠近纬壹科技园OneNorth,大型办公楼有Fusionpolis(数字传媒、科学研发等)、Mediapolis(影片制作等)、Biopolis(生物制药、日用品、化妆品公司研发等),这里极有可能发展成为新加坡科技中心,很多创业公司在这里,"新加坡版的硅谷",很多国际大型公司在这里如宝洁公司、壳牌Shell、迪士尼、GSK医疗公司等,东南亚电商冬海集团SEA(Shopee母公司)在这一带,大量的公司白领、蓝领工作人士在这一带工作,如研究人员、工程师、专家、教授、分析员等,这些都是属于高收入人群,潜在的买房和租房这块需求。
除了小区自带的8个商业单位满足您的日常生活外,可以驾车3~5分钟到达女皇镇一带的Queensway Shopping Mall(主打体育运动类鞋子、衣服)、宜家家具城(IKEA Singapore)、AlexandraCentral Mall购物中心、Star Vista和新加坡最大的商场怡丰城VivoCity,里面有大型超市、餐馆、IMAX电影院、食阁、零售店等,全方位满足您生活各方面需求。
地处其他中央区RCR,家门口不远处有AYE高速入口,方便的交通前往全岛各地,只需约3分钟车程可以到纬壹科技区,5分钟车程可以到达世界顶尖学府-新加坡国立大学NUS,6分钟车程可以到荷兰村、邓普西山享受美食,6分钟车程可到宜家家具城(IKEA Singapore),解决您家里添置家具的事情,或者去宜家餐厅享受美食。
约6分钟车程可到肯特岗公园Kent Ridge Park,可以去公园散步,贴近大自然享受健康生活。到港湾地铁站的怡丰城Vivo City约9分钟车程(新加坡最大商场),10分钟车程可以到达中央商业区CBD,约11分钟车程到乌节路购物街,11分钟车程可以到达新加坡第二个CBD-裕廊商业区。
花柏山是新加坡著名的地标之一,很多新加坡本地人和游客必经打卡之地,很多摄影爱好者喜欢来这里拍漂亮的照片,如圣淘沙方向的海景图片,徒步爱好者们必来地点之一。家人可携带小孩一起来花柏山座空中电缆车,欣赏漂亮的海景、圣淘沙岛屿景观。
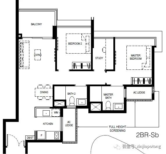
一卧室,49平方米,价格99.2万新币起,有44-61平方米
两卧室+书房,下图为77平方米,价格154.2万新币起,面积77-91平方米
三卧室入门款,下图为90平方米,价格170.8万新币起
三卧室优质款,面积99平方米,配大阳台,游泳池朝向,价格191万新币起
三卧室高级款,面积102平方米,配大阳台,游泳池或公园海景朝向,价格197万起
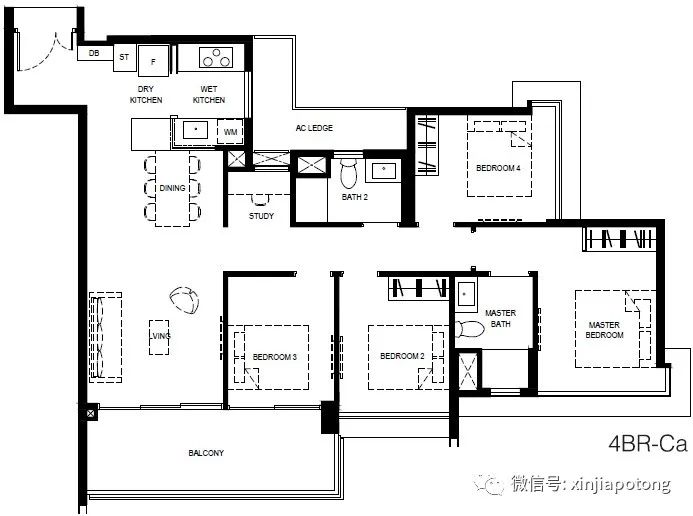
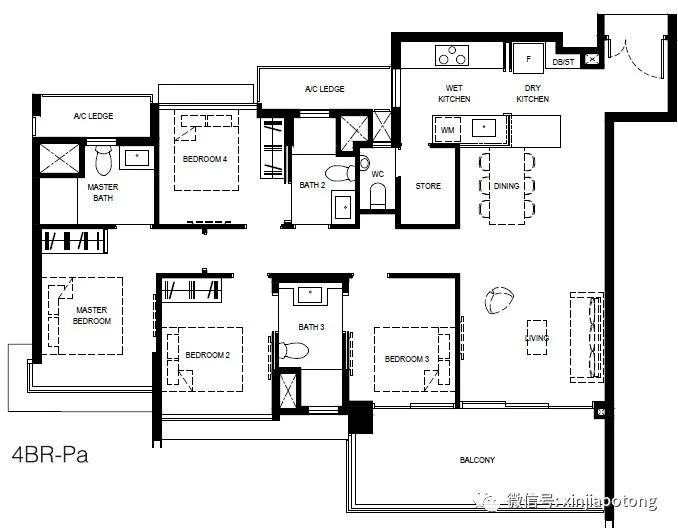
四卧室入门款,111平方米,大客厅配带阳台,海景朝向,价格214.4万新币起
四卧室豪华款,122-124平方米,大客厅配带阳台,海景朝向,价格232.8万新币起
吴彪:2002年拿新加坡政府奖学金来深造,已经定居新加坡18年,熟悉中国和新加坡的国情,现任职于新加坡股票交易所上市公司,新加坡最大的地产公司之一ERA地产公司担任高级营销总监,从事房屋经纪行业10年多,已经完成数百宗房地产交易,成交的房屋价值高达新币上亿元,服务过数百位中高档客户,广受客户们好评。包括企业家、高管、中小型企业老板、房地产发展商、新移民、教授、医生等等。
熟悉私人公寓,商业地产,组屋的交易流程,协助顾客办理好贷款、律师办理房产相关手续等,公司全岛各地100多个项目,从大众化公寓到豪宅,提供新加坡任何公寓楼盘和商业地产买卖投资服务,买私宅无任何经纪费用。
买卖房产是专业的事情,专业的事情找专业经纪做。
真诚待人,熟悉房地产市场,通晓中英文双语,善于沟通、合作共赢。

ERA Plush会员(经过公司严格挑选,服务高净值客户)
感谢各位客户朋友的支持,本人在公司多次获得顶级销售奖、公司精英奖,提供诚意十足,细心周到的为客户服务,所以收到客户们的广泛好评,服务好每位客户是我的最重要原则,欢迎买家或卖家联系我。
微信号:Jackwuhome电话:65-91525858
公众号:新加坡通(新加坡房产资讯、政策解读等等)
网站: www.Jackwuhome.com
